Apartamento T4 Duplex, com estacionamento e arrecadação, no Barreiro

Setúbal - Barreiro - Santo António da Charneca
€ 574.000
259 m2
T4

Caracterização do Imóvel

Tipo de imóvel Apartamento
Tipologia T4
Características Usado
Classe energética B
Número de casas de banho 3
Ano de Construção 2010

Áreas

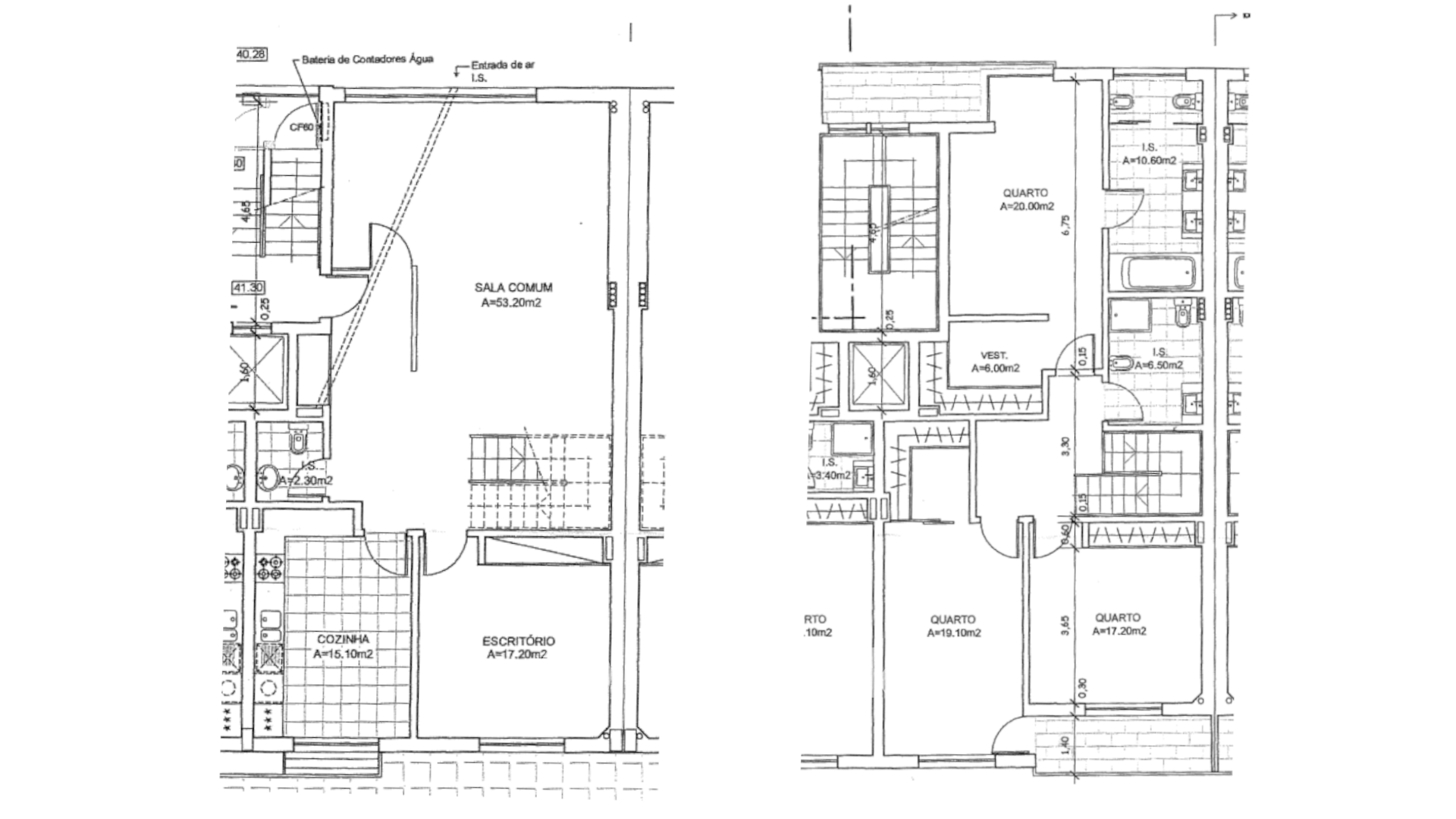
Área Bruta de Construção 259.00 m2
Área Bruta Privativa 215.71 m2
Área Bruta Dependente 42.92 m2

Descrição

Apartamento T4 Duplex com um design cuidado e áreas generosas, dois lugares de estacionamento e arrecadação, em Santo António da Charneca, no Barreiro.

Este duplex moderno ocupa o Rés-do-chão e o 1º andar, com 215,7m2 de área, usufrui de áreas amplas e bem estruturadas, um bom aproveitamento da luminosidade natural, lugares de estacionamento coberto e inúmeros detalhes de conforto. Pelo que é vocacionado para quem privilegia um estilo de vida funcional e tranquilo ou um ativo de investimento imobiliário com retorno assegurado.

A sala de estar apresenta-se como um espaço amplo e com muita luz natural, em virtude de possuir uma janela de meio corpo que ocupa toda a largura da divisão. Dada a sua dimensão e disposição, a sala permite a estruturação harmoniosa de duas áreas distintas, uma destinada a refeições e outra a convívio e lazer, pelo que se assume como um espaço versátil e fluído.

A cozinha possui um cunho luminoso e funcional, expresso pela bancada em pedra cinza, coerente com os armários minimalistas e com muita capacidade de arrumação que revestem este espaço. Dada a sua dimensão, a cozinha comporta facilmente uma mesa de refeições, sem que tal prejudique a sua fluidez.

O primeiro piso conta ainda com um escritório com roupeiro embutido e uma casa de banho social equipada com lavatório suspenso com arrumação e sanitários.

Acessível a partir da escadaria em madeira que parte da sala, podemos descobrir o piso superior do duplex, onde se encontram dois quartos e uma suite. São verdadeiros refúgios de tranquilidade, com áreas bem estruturadas, varandas, roupeiros embutidos e projetados para oferecer o máximo conforto e privacidade. A suite encerra em si uma casa de banho enorme, equipada com dois lavatórios com arrumação, banheira com resguardo e demais sanitários.

A casa de banho do piso superior possui um lavatório suspenso com arrumação, cabine de duche larga e sanitários, pelo que a função de apoio à zona de quartos se encontra plenamente assegurada.

Para além de todas qualidades já indicadas, importa ainda destacar os seguintes atributos de conforto de que o futuro comprador irá usufruir:
- Ar condicionado
- Estores elétricos
- Closet
- Porta blindada de alta segurança
- Videoporteiro
- Prédio com elevador
- Dois lugares de estacionamento privativos
- Arrecadação

Este Apartamento está situado numa zona de elevada procura na Área Metropolitana de Lisboa, no Barreiro, e é um investimento seguro, seja para habitação própria permanente, seja para posterior colocação no mercado de arrendamento, uma vez que se encontra bem servido de transportes públicos e está próximo dos acessos às Estradas Nacionais 10 e 11, ao IC21 e à A33.

Na área envolvente, é possível encontrar superfícies comerciais de distribuição (Pingo Doce, My Auchan e vários supermercados locais), comércio tradicional e diversos estabelecimentos de lazer e restauração, bem como serviços públicos, farmácias, ginásios, escolas (como a EB 2,3 Secundária de Santo António Da Charneca) e espaços verdes (como a Mata Nacional da Machada). Sendo igualmente digno de registo a proximidade às cobiçadas margens do Rio Tejo e a tudo o que o centro do Barreiro tem para oferecer.

Descubra a sua nova casa com a imovendo… contacte-nos já hoje!

A imovendo é uma empresa de Mediação Imobiliária (AMI 16959) que, por ter a comissão mais baixa do mercado, consegue assegurar o preço mais competitivo para este imóvel.

Precisa de ajuda com crédito? Fale com a Protectus (Eupago - Instituição de Pagamento, Lda. , n.º 8709, NIPC 513212744, Banco de Portugal).

Atributos

Equipamentos
  • Ar Condicionado
  • Estores Eléctricos
  • Fibra Óptica
Segurança
  • Porta Blindada
  • Videoporteiro
Principais atributos do imóvel
  • Varanda
  • Closet
  • Suite Principal
  • Arrecadação
  • Terraço
  • Roupeiros: 5
  • Estacionamento: 2
Infraestruturas do imóvel
  • Elevador
  • Ligação à rede eléctrica
  • Ligação à rede de esgotos
  • Ligação à Rede Pública de Água

Fotografias

Apartamento T4 Duplex, com estacionamento e arrecadação, no Barreiro
Sala de estar
Apartamento T4 Duplex, com estacionamento e arrecadação, no Barreiro
Sala de estar
Apartamento T4 Duplex, com estacionamento e arrecadação, no Barreiro
Sala de estar
Apartamento T4 Duplex, com estacionamento e arrecadação, no Barreiro
Sala de estar
Apartamento T4 Duplex, com estacionamento e arrecadação, no Barreiro
Sala de estar
Apartamento T4 Duplex, com estacionamento e arrecadação, no Barreiro
Sala de estar
Apartamento T4 Duplex, com estacionamento e arrecadação, no Barreiro
Cozinha
Apartamento T4 Duplex, com estacionamento e arrecadação, no Barreiro
Cozinha
Apartamento T4 Duplex, com estacionamento e arrecadação, no Barreiro
Cozinha
Apartamento T4 Duplex, com estacionamento e arrecadação, no Barreiro
Cozinha
Apartamento T4 Duplex, com estacionamento e arrecadação, no Barreiro
Cozinha
Apartamento T4 Duplex, com estacionamento e arrecadação, no Barreiro
Cozinha
Apartamento T4 Duplex, com estacionamento e arrecadação, no Barreiro
Quarto
Apartamento T4 Duplex, com estacionamento e arrecadação, no Barreiro
Quarto
Apartamento T4 Duplex, com estacionamento e arrecadação, no Barreiro
Quarto
Apartamento T4 Duplex, com estacionamento e arrecadação, no Barreiro
Casa de Banho
Apartamento T4 Duplex, com estacionamento e arrecadação, no Barreiro
Casa de Banho
Apartamento T4 Duplex, com estacionamento e arrecadação, no Barreiro
Sala de estar
Apartamento T4 Duplex, com estacionamento e arrecadação, no Barreiro
Escadas
Apartamento T4 Duplex, com estacionamento e arrecadação, no Barreiro
Corredor
Apartamento T4 Duplex, com estacionamento e arrecadação, no Barreiro
Quarto
Apartamento T4 Duplex, com estacionamento e arrecadação, no Barreiro
Quarto
Apartamento T4 Duplex, com estacionamento e arrecadação, no Barreiro
Terraço
Apartamento T4 Duplex, com estacionamento e arrecadação, no Barreiro
Terraço
Apartamento T4 Duplex, com estacionamento e arrecadação, no Barreiro
Quarto
Apartamento T4 Duplex, com estacionamento e arrecadação, no Barreiro
Casa de Banho
Apartamento T4 Duplex, com estacionamento e arrecadação, no Barreiro
Casa de Banho
Apartamento T4 Duplex, com estacionamento e arrecadação, no Barreiro
Casa de Banho
Apartamento T4 Duplex, com estacionamento e arrecadação, no Barreiro
Casa de Banho
Apartamento T4 Duplex, com estacionamento e arrecadação, no Barreiro
Corredor
Apartamento T4 Duplex, com estacionamento e arrecadação, no Barreiro
Quarto
Apartamento T4 Duplex, com estacionamento e arrecadação, no Barreiro
Quarto
Apartamento T4 Duplex, com estacionamento e arrecadação, no Barreiro
Varanda
Apartamento T4 Duplex, com estacionamento e arrecadação, no Barreiro
Quarto
Apartamento T4 Duplex, com estacionamento e arrecadação, no Barreiro
Quarto
Apartamento T4 Duplex, com estacionamento e arrecadação, no Barreiro
Closet
Apartamento T4 Duplex, com estacionamento e arrecadação, no Barreiro
Quarto
Apartamento T4 Duplex, com estacionamento e arrecadação, no Barreiro
Quarto
Apartamento T4 Duplex, com estacionamento e arrecadação, no Barreiro
Quarto
Apartamento T4 Duplex, com estacionamento e arrecadação, no Barreiro
Quarto
Apartamento T4 Duplex, com estacionamento e arrecadação, no Barreiro
Varanda
Apartamento T4 Duplex, com estacionamento e arrecadação, no Barreiro
Vistas
Apartamento T4 Duplex, com estacionamento e arrecadação, no Barreiro
Quarto
Apartamento T4 Duplex, com estacionamento e arrecadação, no Barreiro
Corredor
Apartamento T4 Duplex, com estacionamento e arrecadação, no Barreiro
Casa de Banho
Apartamento T4 Duplex, com estacionamento e arrecadação, no Barreiro
Casa de Banho
Apartamento T4 Duplex, com estacionamento e arrecadação, no Barreiro
Casa de Banho
Apartamento T4 Duplex, com estacionamento e arrecadação, no Barreiro
Corredor
Apartamento T4 Duplex, com estacionamento e arrecadação, no Barreiro
Hall
Apartamento T4 Duplex, com estacionamento e arrecadação, no Barreiro
Zonas comuns
Apartamento T4 Duplex, com estacionamento e arrecadação, no Barreiro
Lugar de estacionamento
Apartamento T4 Duplex, com estacionamento e arrecadação, no Barreiro
Lugar de estacionamento
Apartamento T4 Duplex, com estacionamento e arrecadação, no Barreiro
Arrecadação
Apartamento T4 Duplex, com estacionamento e arrecadação, no Barreiro
Zonas comuns
Apartamento T4 Duplex, com estacionamento e arrecadação, no Barreiro
Fachada
Apartamento T4 Duplex, com estacionamento e arrecadação, no Barreiro
Arredores
Apartamento T4 Duplex, com estacionamento e arrecadação, no Barreiro
Arredores
Apartamento T4 Duplex, com estacionamento e arrecadação, no Barreiro
Arredores

Plantas

Apartamento T4 Duplex, com estacionamento e arrecadação, no Barreiro

Video

Localização

Simular crédito

Faça a sua simulação
A melhor opção para o seu crédito
Taxa variável indexada ao Euribor a 6 meses
Prestação mensal
Spread 1,00 %
Euribor 2,14 %
TAN 3,14 %
Simulador fornecido por protectus.pt

Marque a sua visita ao imóvel